Compare Listings

Description

Proponiamo in vendita a Lignano Pineta un appartamento bilocale con vista panoramica sulla pineta e scorcio sul mare, situato nel Residence Riviera, storico condominio in prima fila sul mare, immerso nel verde e dotato di piscina.

Una soluzione ideale per chi cerca una casa vacanze comoda, luminosa e pronta all’uso, in una delle zone più apprezzate di Lignano Sabbiadoro.

 

📍 CONTESTO

Il Residence Riviera sorge nel cuore della pineta di Lignano Pineta, a pochi passi dalla spiaggia, raggiungibile attraverso un piacevole sentiero immerso nel verde.

L’edificio, nato con il concept di hotel e oggi a uso residenziale, offre ambienti curati e un’atmosfera rilassata, tipica delle vacanze sul mare.

Negli ultimi anni sono stati eseguiti importanti lavori di manutenzione, tra cui il rifacimento dell’ingresso principale, della pavimentazione dell’area piscina e dell’impianto fognario condominiale. Attualmente non sono previsti lavori straordinari.

Il residence dispone di due ascensori e di un montacarichi, elementi che garantiscono comfort e praticità. Durante la stagione estiva è attivo un servizio di custode, che cura la manutenzione del giardino, della piscina e l’ordine generale del condominio, offrendo anche supporto ai condomini in caso di necessità.

Essendo un edificio destinato prevalentemente a uso vacanza, per motivi di sicurezza l’erogazione dell’acqua fredda viene interrotta nel periodo invernale (da novembre a marzo) per evitare il rischio di congelamento delle tubazioni.

Parcheggio: il condominio dispone di un’area adiacente adibita temporaneamente a parcheggio non assegnato, attualmente disponibile per i condomini. Davanti all’ingresso principale è inoltre presente uno spazio riservato al carico e scarico bagagli, e nelle vicinanze si trovano parcheggi pubblici su strada.

Il residence si trova nel cuore di Lignano Pineta, in una zona servita e vivace, dove negozi, ristoranti, bar, supermercati e farmacia sono raggiungibili in pochi minuti a piedi. Tutto ciò che serve per vivere la vacanza in piena comodità è davvero a portata di mano.

 

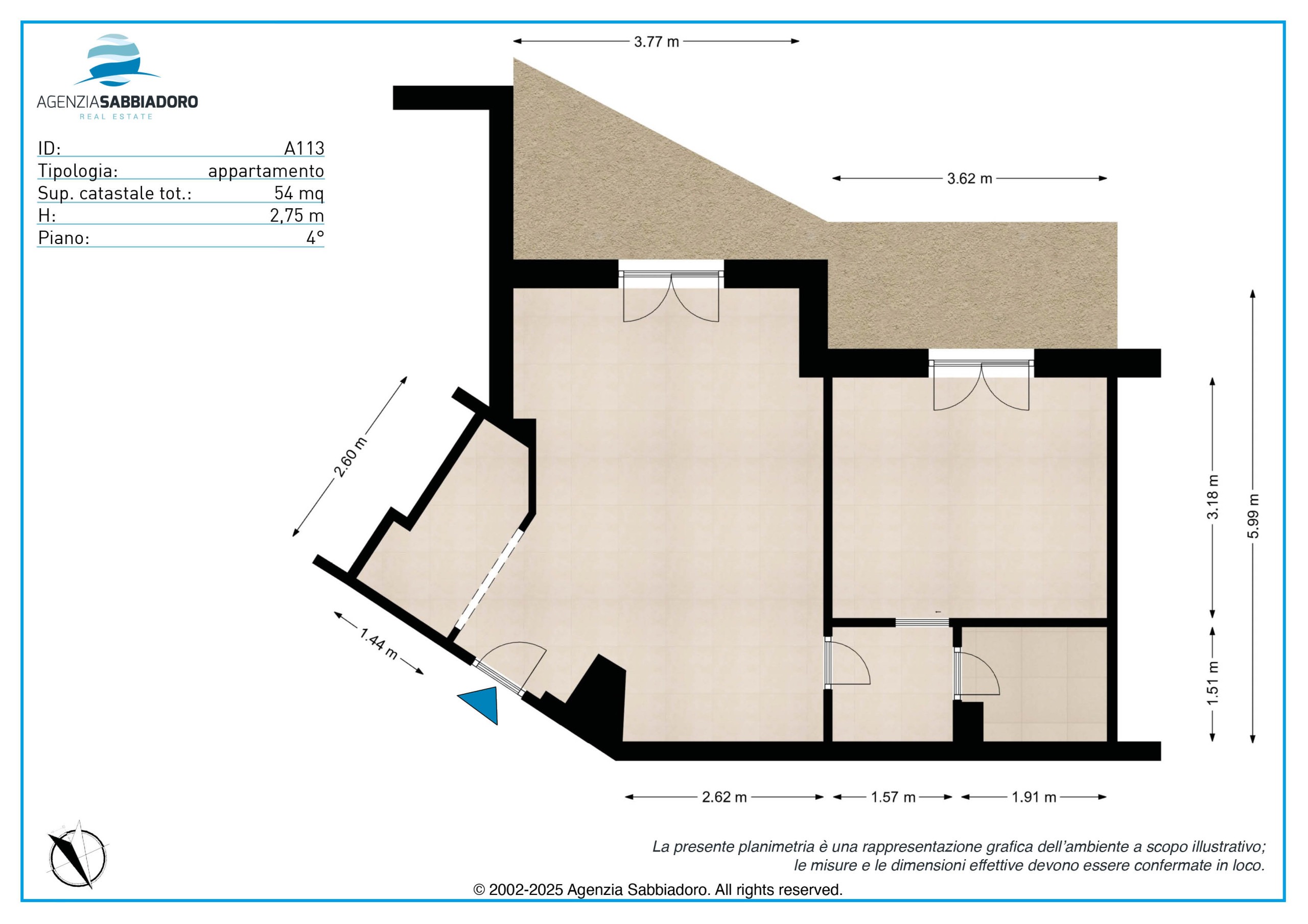
🏡  COMPOSIZIONE DELL’APPARTAMENTO

L’appartamento si trova al quarto piano e gode di una vista aperta sulla pineta, con uno scorcio sul mare che regala un’atmosfera rilassante e naturale.

L’abitazione si distingue per la sua distribuzione razionale degli spazi:

  • Soggiorno con angolo cottura, ben organizzato e collegato direttamente alla terrazza;
  • Camera matrimoniale con spazio ottimizzato e luminoso;
  • Bagno con box doccia;
  • Terrazza vivibile, perfetta per momenti di relax o per godere del panorama sulla pineta.

L’esposizione a sud assicura una piacevole luminosità nelle ore centrali della giornata, rendendo l’ambiente accogliente e piacevole durante la stagione estiva.

 

✨ STATO E FINITURE

Ristrutturazione del 2013 – Pronto all’uso

L’appartamento è stato rinnovato nel 2013, con interventi sugli impianti elettrici e idraulici e sulle finiture interne, che oggi si presentano in ottimo stato.

Dotazioni principali:

  • Pavimenti in grès e dettagli curati;
  • Impianti elettrico e idraulico rifatti;
  • Climatizzatore inverter sostituito nel 2025, con funzione caldo/freddo;
  • Boiler elettrico e piano a induzione;
  • Tende parasole sulla terrazza.

L’appartamento viene venduto arredato, pronto per essere utilizzato da subito, sia come casa vacanze che come soluzione da mettere a reddito.

 

💎 PUNTI DI FORZA

  • Posizione strategica: prima fila sul mare, nel cuore della pineta.
  • Condominio con piscina, servizio di custode, due ascensori e montacarichi.
  • Ottime condizioni interne, impianti rinnovati e climatizzatore nuovo.
  • Vista panoramica sulla pineta e scorcio sul mare.
  • Venduto completamente arredato e pronto all’uso.

ℹ️  Informazioni utili per una valutazione completa

  • Il condominio è a uso prevalentemente turistico, con chiusura della fornitura idrica nel periodo novembre–marzo per motivi di sicurezza.
  • L’area parcheggio condominiale è non assegnata e a disponibilità variabile nel tempo.

 

👥 IDEALE PER…

  • Chi cerca una casa vacanze pronta all’uso, già arredata e in posizione strategica a pochi passi dal mare.
  • Coppie o single che desiderano un punto d’appoggio comodo, luminoso e facilmente gestibile per i soggiorni estivi.
  • Investitori interessati a una soluzione a reddito immediato, facilmente locabile grazie alla posizione, alla piscina condominiale e alla vista sulla pineta.

 

📞 Contattaci per maggiori informazioni o per fissare una visita.

 

Il presente annuncio ha valore puramente indicativo e non costituisce elemento, vincolo o presupposto contrattuale. Tutte le misure eventualmente riportate devono considerarsi indicative.

Features

  • Aria condizionata
  • Ascensore
  • Custode
  • Fronte mare
  • Giardino comune
  • Lavatrice
  • Piscina condominiale
  • Possibilità di personalizzazione
  • Terrazzo
  • Vista mare

Planimetria

> <

Virtual Tour

Costi

Price:
vendita € 245.000
Spese condominio:
~ 146 €/mese (dal 01.01.2025 al 31.12.2025 € 1.758,21)
Informazioni catastali:
categoria A/2, classe 6, rendita € 410,58

Efficienza energetica

Anno di costruzione:
1967
Anno di ristrutturazione:
2013
Stato:
ottimo
Sorgente energetica:
energia elettrica
Climatizzatore:
autonomo, freddo e caldo
Orientamento:
sud

Indirizzo e mappa

Arco del Grecale, 2, Lignano Sabbiadoro, Pineta, 33054, Italia
Il posizionamento sulla mappa potrebbe essere approssimativo.